
Le bâtiment est à l’angle de la rue de Bâle et de la rue du Norfeld, au cœur d’un quartier de ville en pleine mutation, grâce à l’apparition du projet Alma Leggo dans la « skyline » Mulhousienne (La Fabrique en est le voisin direct).
Le bâtiment est idéalement placé à proximité du canal et de sa future promenade douce qui mène à la gare en quelques minutes et le quartier Salengro – la Filature et le Parc Salvator.
Son accès est facile d’où que l’on vienne, de nombreuses places de parking sont dédiées au projet.
Quelle que soit votre activité, vos clients trouveront facilement une place de stationnement pour venir chez vous .



La Fabrique est pensée comme un lieu mixte et vivant permettant à la fois d’accueillir :
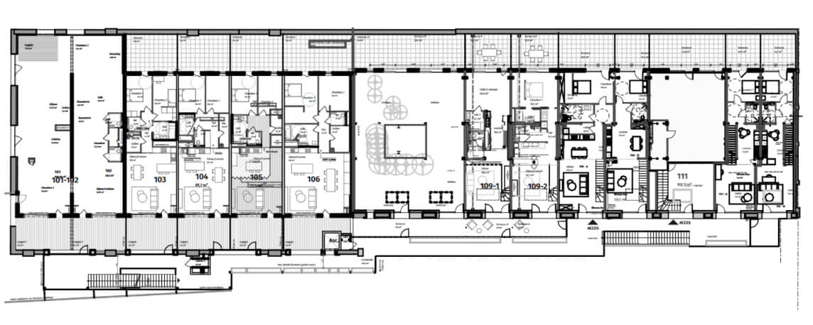
Pour les 2 niveaux destinés à des activités professionnelles, les surfaces sont divisibles .
Cette souplesse permet à chaque porteur de projet d’y trouver sa place.
Notre équipe de commercialisateurs et l’architecte de l’opération sont à votre disposition pour vous accompagner dans votre réflexion.
Contactez-nous pour élaborer ensemble votre projet !
Un rendez-vous de présentation ?
Une visite? Un échange avec nos architectes ?
N’hésitez pas à contacter nos commercialisateurs

